Riverview East - 148 East Ave, 9-Unit Investment

 

100% Leased 9-Unit Medical Office Investment Opportunity

Wexler Healthcare Properties is pleased to present an exceptional investment opportunity featuring a strategically located medical office property in Norwalk, Connecticut, situated less than 2 miles from Norwalk Hospital. This asset is anchored by a major hospital system with an investment-grade credit rating, providing for long-term stability.

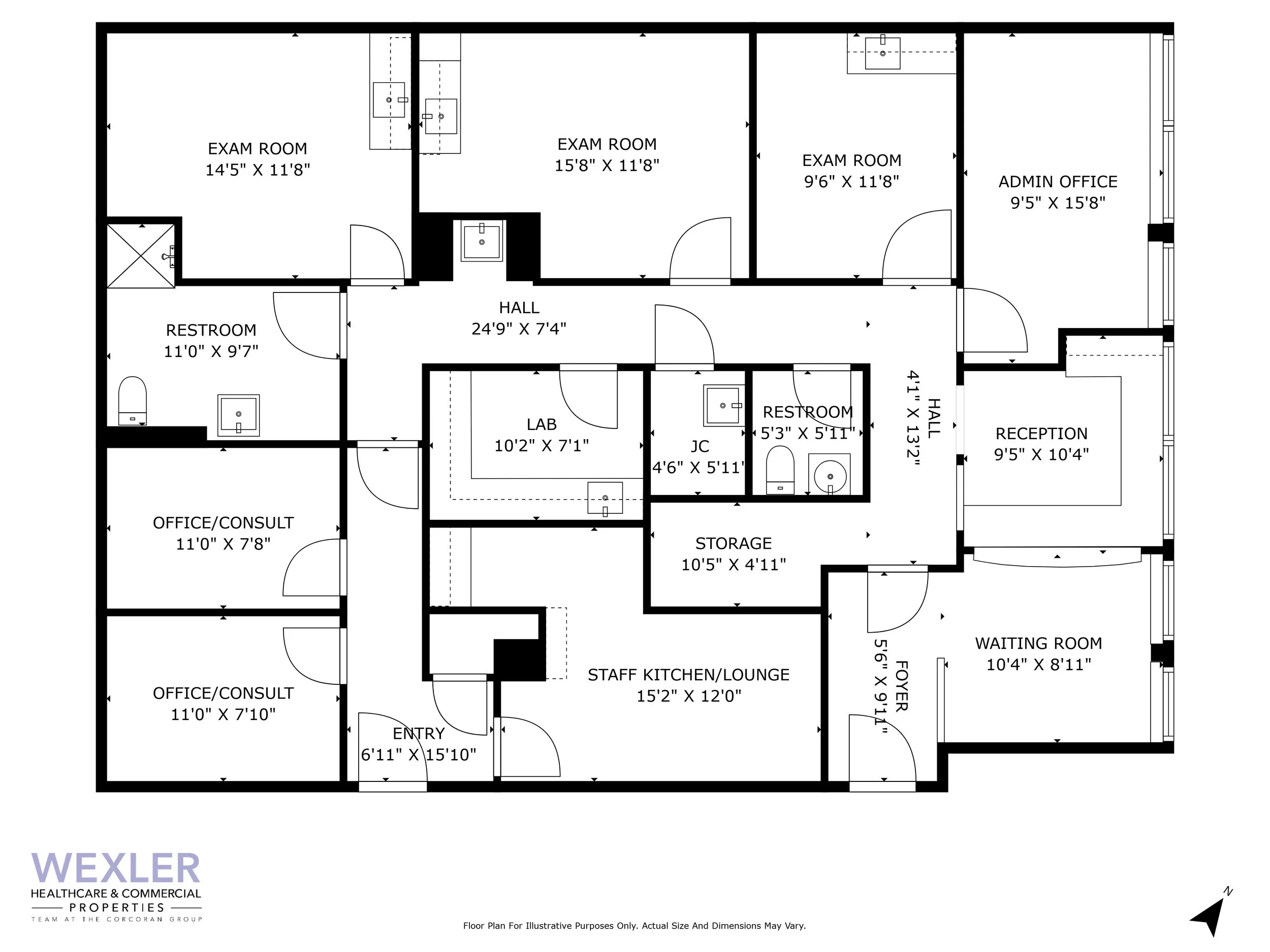
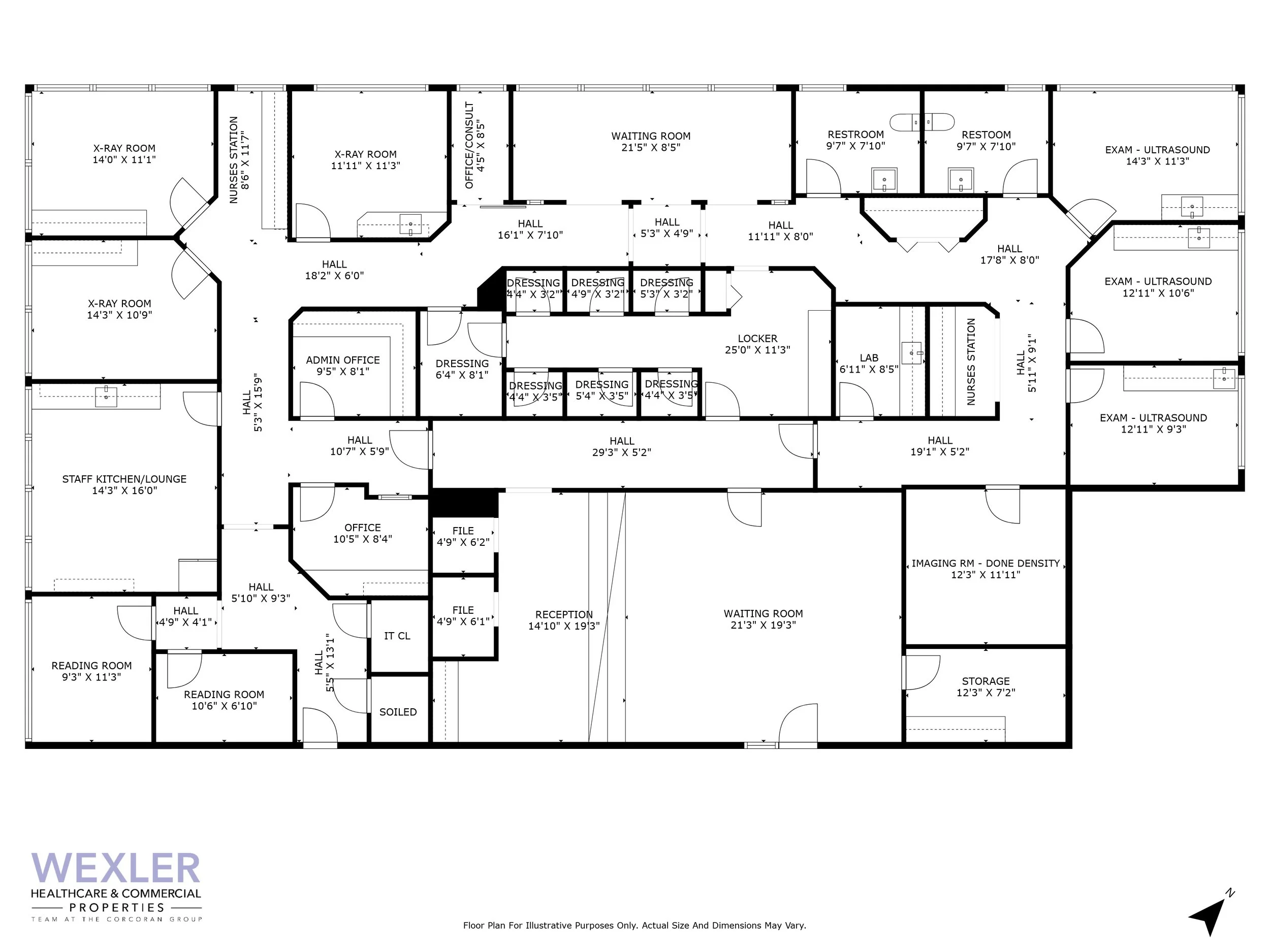
The property encompasses approximately 21,393 rentable square feet across nine condominium units combined into four separate offices which house radiology, cardiology and urogynocology practices. The suites are thoughtfully designed with numerous well-equipped exam rooms, consultation offices, and spacious waiting and reception areas.

Key features include:

  • New imaging center

  • 100% occupied by credit tenant

  • Parking Ratio: 4.5/1,000

  • Renovated lobby

  • Close to other medical buildings

  • Total building is approximately 120,000 RSF

  • Close proximity to I-95 and Route 7

  • Drop-off and pick-up area for patients

  • Less than 1-mile from East Norwalk Train Station

  • Attended lobby during business hours

This secure investment is further strengthened by recently signed, long-term leases for the majority of the space, providing a reliable, passive income stream.

TENANT OVERVIEW

  • Major Health System

  • A non-profit, independent health system serving portions of Connecticut

  • Physician-led, multi-specialty medical group with more than 40 offices offering primary and specialty care

  • BBB+ long-term credit rating from S&P Global Ratings

  • Recognitions

  • High-Performing Hospital from U.S. News & World Report

  • “A” for patient safety from the Leapfrog Group

  • Magnet Status from the American Nurses Credentialing Center

  • Planetree Gold-Certification for Excellence in Person-Centered Care

  • Certified Great Place to Work

Brochure and Floor Plans

Galleries

Exterior

Common Areas

Suite 1HIJK - Imaging Center

Suite 1E - Urology

Suite 1MN - Radiology

Suite 2LP - Cardiology


3D Video Tours

Nearly identical 3D-rendered video tours representing the spaces in their current condition.

Suite 1HIJK

Imaging Center

Suite 1MN

Radiology

Suite 1E

Urology

Suite 2LP

Cardiology


Floor Plans

View Interactive Floor Plans

Brochure


Contact Us to Learn more
Previous
Previous

1755 York Ave, Suite A