Suite 3100 at Westfield WTC

 

Located at the heart of Lower Manhattan, Westfield World Trade Center anchors the World Trade Center campus as a premier transit and retail hub, connecting the PATH Train, multiple subway lines, and surrounding office towers. It serves as both a commuter gateway and global destination with a constant, diverse flow of visitors.

Westfield World Trade Center draws approximately 200,000 people daily, comprised of office workers, tourists visiting the World Trade Center and One World Observatory, and local residents. This built-in population supports steady, all-day foot traffic.

Located in West Concourse Level 2, Suite 3100 offers 2,606 square feet of usable space with over 41 feet of prime frontage along the primary pedestrian spine linking the 1 World Trade Center office lobby to the Oculus, PATH, and westward to the Brookfield Place Ferry Terminal. This high-traffic corridor captures continuous east–west commuter flow across rail, subway, and ferry connections. 

For healthcare users, the location offers immediate access to a dense patient base seeking convenient, time-efficient care near work and transit. The mix of commuters, residents, and tourists supports a wide range of practices, from urgent care to specialty services, aligning with today’s accessibility-driven care model. 

Floor Plans

Proposed Medical Test-Fit: Physical Therapy 
2,606 USF

Waiting Area
Reception
Gym/Exercise Area
Seven Treatment Rooms
ADA Restroom
Staff Restroom
Kitchen/Pantry 
Three Admin Offices
Closets/storage


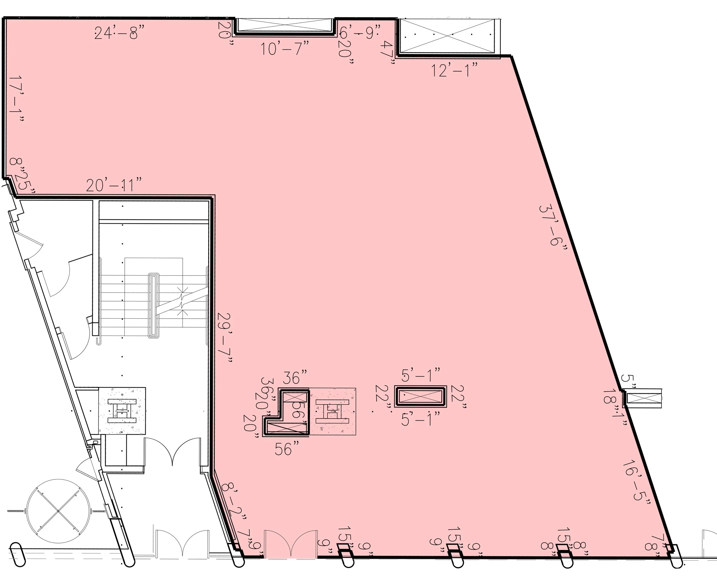
Current Layout: Raw 
2,606 USF


Test-Fit Renderings

Brochure

 
Previous
Previous

Suite 3110 at Westfield WTC

Next
Next

55 East 87th Street, Suite 1C