
Scroll down for filters
CURRENT AVAILABILITIES
Sale
Lease
Filtered Results Below
Filters do not affect the map above
1160 Park Avenue, Suite 1A1C
Available for sale, 1160 Park Avenue, Suite 1A1C is a ground-floor medical office at the base of a luxury residential co-op. This suite offers direct patient access through a shared street entrance separate from the building’s main residential lobby, as well as a secondary ingress/egress on East 92nd Street for additional convenience and privacy.
Highlights
1,850 SF main office suite plus 350 SF storage/office off the lobby
Shared street entrance on Park Ave separate from the main lobby
Secondary ingress/egress on East 92nd Street allows flexible patient and staff flow
Additional storage/office space for staff, records, or administrative use
Adaptable design suitable for a wide range of medical specialties
Adaptable to any medical specialty
Layout
Waiting Room
Reception Area
Two Private Offices/Consult Rooms
Six Exam Rooms
Five Restrooms
About the Location
Situated in Carnegie Hill on the Upper East Side, this Park Avenue address offers both prestige and convenience. The neighborhood is home to a strong residential community, world-class hospitals, and a robust physician network. Suite 1A1C provides healthcare providers with a Park Avenue presence, serving both local patients and those traveling from across New York City.
Transportation & Accessibility
Proximate to the 4, 5, and 6 subway lines along Lexington Avenue
Close to crosstown and uptown/downtown bus routes
Proximate to leading medical institutions, including:
o Mount Sinai Hospital
o Lenox Hill Hospital
o NewYork-Presbyterian/Weill Cornell Medical Center
o Hospital for Special Surgery (HSS)
o Memorial Sloan Kettering Cancer Center
Ideal Uses
Physicians, specialists, or healthcare groups seeking to own medical space in one of Manhattan’s most desirable neighborhoods, with direct patient access, multiple entry points, and a flexible, fully functional medical layout.
Maintenance
$7,500/Month
Brochure
Interactive Floor Plan
360 East 72nd St, Suite 1A
Available for sale, 360 East 72nd Street, Suite 1A is a move-in ready Lenox Hill medical office located between First and Second Avenues. This ground-floor medical suite is located at the base of a full-service cooperative featuring a private street entrance.
The layout of approximately 1,800 square feet includes a large area, a reception, admin office space, five exam/treatment rooms, two offices/consults, a nurses’ station, a staff kitchenette, two restrooms, and an IT closet.
This space features multi-zone climate control, six windows, and security system. This space is configured as a Hyperbaric Oxygen Therapy practice but is adaptable to any medical specialty.
360 East 72nd Street is easily accessible by public transportation via UES bus routes and subway lines. This location is proximate to Lenox Hill Hospital, NewYork-Presbyterian Hospital, Weill Cornell Medical Center, HSS Hospital for Special Surgery, and Memorial Sloan Kettering Cancer Center.
Maintenance/Month: $3,151.11
Max Financing: 75%
Flip Tax: None
Brochure
Interactive Floor Plan
55 Greene Ave, Suite 2D2E
Wexler Healthcare & Commercial Properties is pleased to present a rare opportunity to purchase a combined medical office condominium in the heart of Fort Greene, Brooklyn. Located at 55 Greene Avenue (alternate address: 383 Carlton Avenue), Unit 2D2E, this expansive space offers 3,470 SF of thoughtfully designed medical interiors, ideal for a wide range of specialties. Condos can be split into two discrete suites of 1,890 SF, and 1,580 SF.
The space features a functional layout built to accommodate high patient volume and efficient workflow.
This property receives an ICIP real estate tax exemption through tax year ending June 30, 2029.
Layout
Large waiting area
Dual receptions
Eleven exam rooms (one can be used for procedures, one for pre-op)
Lab
Nurses’ station
Sitting area
Staff lounge
Four restrooms (one in private office)
Locker room for staff
Storage Room
Private office/consult with en suite bathroom
Additional Benefits
Dedicated medical entrance within the building
Elevator access to the second floor
Parking space available for lease to the doctor/owner ($662.25/Month)
All utilities included in common charges
Flexible layout: use as one large suite (3,470 SF) or divide into two units:
Unit 2D: 1,890 SF
Unit 2E: 1,580 SF
Excellent accessibility via public transportation — the C train is just two blocks away, providing a direct connection into Manhattan and is proximate to the Brooklyn Hospital Center, Barclays Center, The Atlantic Terminal, and The Atlantic Center.
Additional ingress/egress
Central air conditioning
Speaker system throughout
Recessed and overhead lighting
Adaptable to any medical specialty
3D Media
Brochure
Interactive Floor Plan
620 Park Ave, GF
Prime Lenox Hill, move-in ready medical office available for sale at 650 Park Avenue between East 66th and East 67th Street. Located on the ground floor of a luxury co-op, this fully equipped suite offers a turn-key solution for any medical specialty.
This medical office offers a layout of approximately 2,000 square feet and is equipped with an operating suite consisting of a secondary ingress (divisible into two discrete suites), a Quad-A certified operating room, pre-op, two-bay recovery room, and a lab. The office offers three exam rooms, an office/consult, a staff kitchenette with a washer and dryer, reception and waiting areas, a storage room, two closets, and two ADA restrooms.
620 Park Avenue is easily accessible by public transportation via Upper East Side subway lines and bus routes and are within close proximity to several top medical facilities in New York including Lenox Hill Hospital, Memorial Sloan Kettering Cancer Center, The Manhattan Eye, Ear, Nose and Throat Hospital, The Hospital for Special Surgery, Mount Sinai Medical Center, NY Presbyterian/Weill Cornell Hospitals, and Rockefeller University Hospital.
Maintenance: $6,400/Month
Financing: 50% Maximum
Flip Tax: 3% Paid by Buyer
3D Media
Brochure
Interactive Floor Plan
911 Park Ave, Suite 1A
3,573 SF Surgical Suite with Private Street Entrance on Park Avenue
Available for sale, 911 Park Avenue, Suite 1A, located on the Upper East Side, is a modern, fully-equipped space ideal for a variety of medical practices. Currently configured as an upscale dermatology center, this 3,573-square-foot suite is adaptable to any medical specialty.
The office features an elegant waiting and reception area, an operating room, a procedure prep area, a recovery room, eight exam rooms, a lab, an office/consult, six admin offices, a staff kitchen, a conference room, two storage rooms, two restrooms, and an IT closet.
This fully featured medical suite features a private street entrance on Park Avenue, Midmark Ritter 355 procedure lights in each exam room and the operating room, healthcare-class poured flooring, speaker system throughout, and is wired for video security.
911 Park Ave is easily accessible by public transportation via the 4 and 6 trains at 77th St, the 4, 5, 6, N, Q and R trains at 86th St as well as Upper East Side bus routes. The building is proximate to Lenox Hill Hospital and Mount Sinai.
Maintenance: $9,089.31/month
Brochure
901 Lexington Ave, Suite B
Available for sale, 901 Lexington Avenue, Suite B is a ground floor medical suite located inside a full-service co-op building. This renovated space features vinyl plank flooring, central air conditioning, and a separate street entrance with no stairs.
Currently configured as a physical therapy center, the wide-open layout of approximately 1,000 square feet features pre-war details, two restrooms, a recovery area, and kitchenette. This space is adaptable to any medical specialty.
901 Lexington Avenue is easily accessible by public transportation via Upper East Side subway lines and bus routes and is within close proximity to several top medical facilities in New York including Lenox Hill Hospital, Memorial Sloan Kettering Cancer Center, The Manhattan Eye, Ear, Nose and Throat Hospital, The Hospital for Special Surgery, Mount Sinai Medical Center, NY Presbyterian and Weill Cornell Hospitals.
Maintenance: $5,200/Month
650 Park Ave, North Suite
Renovated Park Avenue Office
at 650 Park Avenue
Prime Lenox Hill, move-in ready medical office available for sale at 650 Park Avenue between East 66th and East 67th Street. Located on the ground floor of a luxury co-op, this fully equipped suite offers a turn-key solution for any medical specialty.
The meticulously designed perinatal therapy and fertility clinic space offers a layout of approximately 2,337 square feet. Upon entering the private street entrance on Park Ave, patients proceed through a private foyer leading to a large reception and waiting area.
The office is comprised of three exam rooms, two offices/consults, an admin area, nurses’ station, a staff kitchen/lounge, a file closet, and three restrooms – one of which is located in the primary office/consult.
An abundance of recessed and overhead lighting illuminate the space, creating an inviting ambiance conducive to productivity and patient comfort.
650 Park Avenue is easily accessible by public transportation via Upper East Side subway lines and bus routes and are within close proximity to several top medical facilities in New York including Lenox Hill Hospital, Memorial Sloan Kettering Cancer Center, The Manhattan Eye, Ear, Nose and Throat Hospital, The Hospital for Special Surgery, Mount Sinai Medical Center, NY Presbyterian/Weill Cornell Hospitals, and Rockefeller University Hospital.
Maintenance: $7,499.92/Month
960 Park Ave, Suite A
Pristine Park Avenue Surgical Suite
at 960 Park Avenue
Available for sale, 960 Park Avenue, Suite A, located on the Upper East side, is a modern, fully-equipped space ideal for a variety of medical practices. Currently configured as an upscale aesthetic dermatology center, this 4,300-square-foot suite is adaptable to any medical specialty.
The office features a grand waiting room with a decorative fireplace and split staircase, creating a warm and welcoming environment for patients. The reception area with adjacent admin office provides plenty of space for staff and client records, while six exam rooms come equipped with Ritter surgical lights and stainless-steel countertops.
This fully featured medical suite features an AAAHC-accredited operating room, a laboratory, and a recovery room. There are two offices/consult rooms, one of which has a private restroom. Two nurses' stations are strategically located to ensure operational efficiency, and a staff kitchenette off the reception area offers a useful amenity for staff.
The suite includes three restrooms, a storage room, and two closets for supplies. Additionally, a lower-level storage unit in included. A private street entrance with two additional points of ingress/egress ensures both convenience and exclusivity for staff and privacy for clients. The elegant design includes hardwood floors, recessed lighting, and wainscoting for a sophisticated touch. Modern amenities include central air conditioning, an intercom system, and access to the building’s laundry room.
960 Park Ave is easily accessible by public transportation via the 4, 5, 6, N, Q and R trains at 86th St as well as Upper East Side bus routes. The building is proximate to Lenox Hill Hospital and Mount Sinai.
Maintenance: $12,735/Mo
133 East 80th St, Suite 1
Available for sale, 133 East 80th Street, Suite 1 is a ground-floor medical office situated inside a luxury pre-war co-op building located on the Upper East Side between Park and Lexington Avenues.
The layout of approximately 862 SF features waiting and reception areas, an exam room, two treatment rooms, an office/consult, two restrooms, and a staff kitchen.
This space is adaptable to any medical specialty. 133 East 80th Street is easily accessible by public transportation via the 4 and 6 trains at 77th St as well as Upper East Side bus routes. The building is proximate to Lenox Hill Hospital and Mount Sinai.
Maintenance: $8,000/Month
Flip Tax: 3%
Financing: 50% maximum
130 East 67th St, Suite 1C
Prime Lenox Hill move-in ready 1,800 SF medical office available for sale at 130 East 67th Street between Lexington and Third Avenue. Located on the ground floor of a landmarked full-service co-op, this suite has a separate street entrance with additional egress to the lobby and very low maintenance.
Currently configured as an orthopedic surgeon’s office, this space has been recently renovated is adaptable to any medical specialty. The layout of approximately 1,800 square feet features a spacious waiting room and reception area, an administrative office, three consults, five exam rooms, an x-ray room, two restrooms, and six over-sized windows facing East 67th Street.
130 East 67th Street is easily accessible by public transportation via Upper East Side subway lines and bus routes and are within close proximity to several top medical facilities in New York including Lenox Hill Hospital, Memorial Sloan Kettering Cancer Center, The Manhattan Eye, Ear, Nose and Throat Hospital, The Hospital for Special Surgery, Mount Sinai Medical Center, NY Presbyterian/Weill Cornell Hospitals, and Rockefeller University Hospital.
Maintenance: $3,365.39/Month
54 West 71st St - Multifamily Investment
10-Unit Multifamily Investment Opportunity
The Corcoran Group is pleased to exclusively offer for sale 54 West 71st Street, a 10-unit multifamily building located on Manhattan’s iconic Upper West Side neighborhood of New York City. Seven of the ten apartments are free market while the remaining three units are rent regulated.
The 20’ foot wide building spans over 6,600 square feet with each of the five floors above the cellar containing two apartments. The seven free market apartments have had extensive renovations with two of these apartments having large south-facing sun-drenched terraces.
The apartments are generally filled with ample natural light and occupants enjoy high ceilings. Five of the free market apartments have highly coveted in-unit washers and dryers. The building’s façade has been beautifully restored and repaired.
The property is currently fully occupied. The pro forma gross potential rent for the apartments is approximately $393,000.
Exterior & Common Areas
Units
184 East 70th St, Suite B2
Available for sale, 184 East 70th Street, B2 (C6) is a medical/professional condominium located in Lenox Hill between Lexington Avenue and 3rd Avenue.
The layout of approximately 1,883 SF features a large waiting room, a reception area with an additional admin space, six exam rooms, a lab, two offices/consults, two admin offices, two restrooms, and a kitchenette. Currently configured as shared medical practice for cardiology and internal medicine, this space is adaptable to any medical specialty.
184 East 70th Street is easily accessible by public transportation via Upper East Side subway lines and bus routes and within close proximity to several top medical facilities in New York including Lenox Hill Hospital, Memorial Sloan Kettering Cancer Center, The Manhattan Eye, Ear, Nose and Throat Hospital, The Hospital for Special Surgery, Mount Sinai Medical Center, NY Presbyterian /Weill Cornell Hospitals, and Rockefeller University Hospital.
RE Taxes: $44,202.16/Year
Common Charges: $4,358.58/Month
115 East 61st St, Suite 7E
Prime Lenox Hill medical office available for sale at 115 East 61st Street between Park and Lexington Avenue. Located on the 7th floor of a dedicated medical pre-war co-op, this building features a full-time doorman and two passenger elevators.
Currently configured as a dermatology practice, the layout of approximately 1,250 square feet features a large waiting area, reception, four exam rooms, an office/consult, a nurses’ station, storage closet and restroom.
This highly adaptable medial suite features ten windows across all outward facing sides providing an abundance of natural light, recessed and overhead lighting, a speaker system, and central air conditioning.
115 East 61st Street is easily accessible by public transportation via Upper East Side subway lines and bus routes and are within close proximity to several top medical facilities in New York including Lenox Hill Hospital, Memorial Sloan Kettering Cancer Center, The Manhattan Eye, Ear, Nose and Throat Hospital, The Hospital for Special Surgery, Mount Sinai Medical Center, NY Presbyterian/Weill Cornell Hospitals, and Rockefeller University Hospital.
No Flip Tax
Maintenance: $5973.20/Month
115 East 61st St, 9th FL
Prime Lenox Hill medical office available for sale at 115 East 61st Street between Park and Lexington Avenue. Located on the 9th floor of a dedicated medical pre-war co-op, this full-floor suite offers direct elevator access via two passenger cars.
Currently configured as a dermatology practice, this space offers a layout of approximately 4,200 square feet, featuring two offices/consults, one which includes a private restroom, three procedure rooms each with a dedicated dressing room, four additional exam rooms, a UVB treatment room, a nurses station, in and out reception areas, a waiting room, a staff lounge, four restrooms, a records room, seven closets and a janitor’s closet.
This highly adaptable medial suite features twenty-five windows on nearly all sides of the horseshoe layout providing an abundance of natural light.
115 East 61st Street is easily accessible by public transportation via Upper East Side subway lines and bus routes and are within close proximity to several top medical facilities in New York including Lenox Hill Hospital, Memorial Sloan Kettering Cancer Center, The Manhattan Eye, Ear, Nose and Throat Hospital, The Hospital for Special Surgery, Mount Sinai Medical Center, NY Presbyterian/Weill Cornell Hospitals, and Rockefeller University Hospital.
No Flip Tax
Maintenance: $16,193/Month
333 East 34th St, Suite 1L
Available for sale, 333 East 34th Street, Suite 1L is a medical condominium office located in Murray Hill inside a full-service residential building with a 24-hour doorman situated between First and Second Avenue.
The layout of approximately 1,185 square feet features a waiting room, three exam rooms, an office/consult, a file and admin office, a nurses’ station, two restrooms, a kitchenette and reception area.
Currently configured as a Urology practice, this turnkey medical office is adaptable to any medical specialty.
333 East 34th Street is easily accessible by public transportation via the E, M, and 6 trains, crosstown bus routes, and the FDR. The building is centrally located between Lenox Hill and Mount Sinai Beth Israel hospitals.
Common Charges: $983/Month
RE Taxes: $22,910/Year
25 Central Park West, Suite 1R
Available for sale, 25 Central Park West, Suite 1R is a rare ground-floor medical condo located in Lincoln Square/Columbus Circle between West 62nd and West 63rd Street.
The layout of approximately 959 square feet includes three exam rooms, one consult, waiting room, reception, IT Room, and restroom. Currently configured as a podiatry practice, this space is adaptable to any medical specialty.
25 Central Park West, Suite 1R is easily accessible by public transportation via the A, C, B, D, 1, and 2 subway lines and UWS bus routes, while proximate to Mount Sinai West Emergency Room.
Common Charges: $1,626.40/Month
RE Tax: $27,532.76/Year
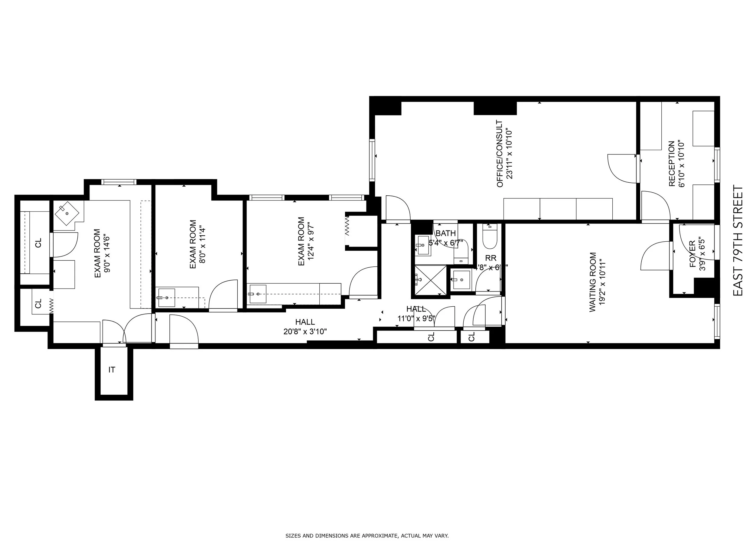
23 East 79th St, Suite GF
Available for sale, 23 East 79th Street is a ground floor medical office featuring a private street entrance on 79th street, situated inside a luxury pre-war co-op building located on the Upper East Side between Fifth and Madison Avenue.
The layout of approximately 1,300 SF features a waiting room, reception area, three exam rooms, an office/consult, two restrooms (one with a shower located in the office/consult), and IT closet and foyer.
This space is adaptable to any medical specialty. 23 East 79th Street is easily accessible by public transportation via the 4, 5, 6, N, Q and R trains at 86th St as well as Upper East Side bus routes. The building is proximate to Lenox Hill Hospital and Mount Sinai.
Maintenance: $5,956/Month
8 East 84th St, Suite GF
Available for sale, located on the Upper East side 8 East 84th Street, GF is a 724 square-foot renovated, ground floor dental suite with a private street entrance.
The office features three operatories, each equipped with wall and ceiling-mounted television monitors, a sterilization room, a lab, an office/consult, a kitchenette, a restroom, a waiting room and reception.
This pristine medical installation features granite floors and overhead lighting throughout, a speaker system and central air conditioning.
8 East 84th Street is easily accessible by public transportation via the 6 train at 86th St as well as Upper East Side bus routes. The building is proximate to Lenox Hill Hospital and Mount Sinai.
Common Charges: $2,600.00/Month
90 East End Ave, COM-B
Available for sale, 90 East End Avenue, Suite B is a ground floor medical office space – featuring a private street entrance – located in Yorkville on the Upper East Side between East 83rd and 84th Street.
The layout of approximately 1,695 square feet includes a waiting room, a reception and admin area, two large offices/consults, five exam rooms, a staff lounge, a private admin office, and a restroom.
Currently configured as a cardiology practice, this space is adaptable to any medical specialty.
90 East End Avenue is easily accessible by public transportation via the 4, 5, 6, and N, Q, R train lines at 86th Street and UES bus routes. This suite is proximate to UES hospitals and medical centers.
Common Charges: $1,350/Month
RE Taxes: $23,825/Year
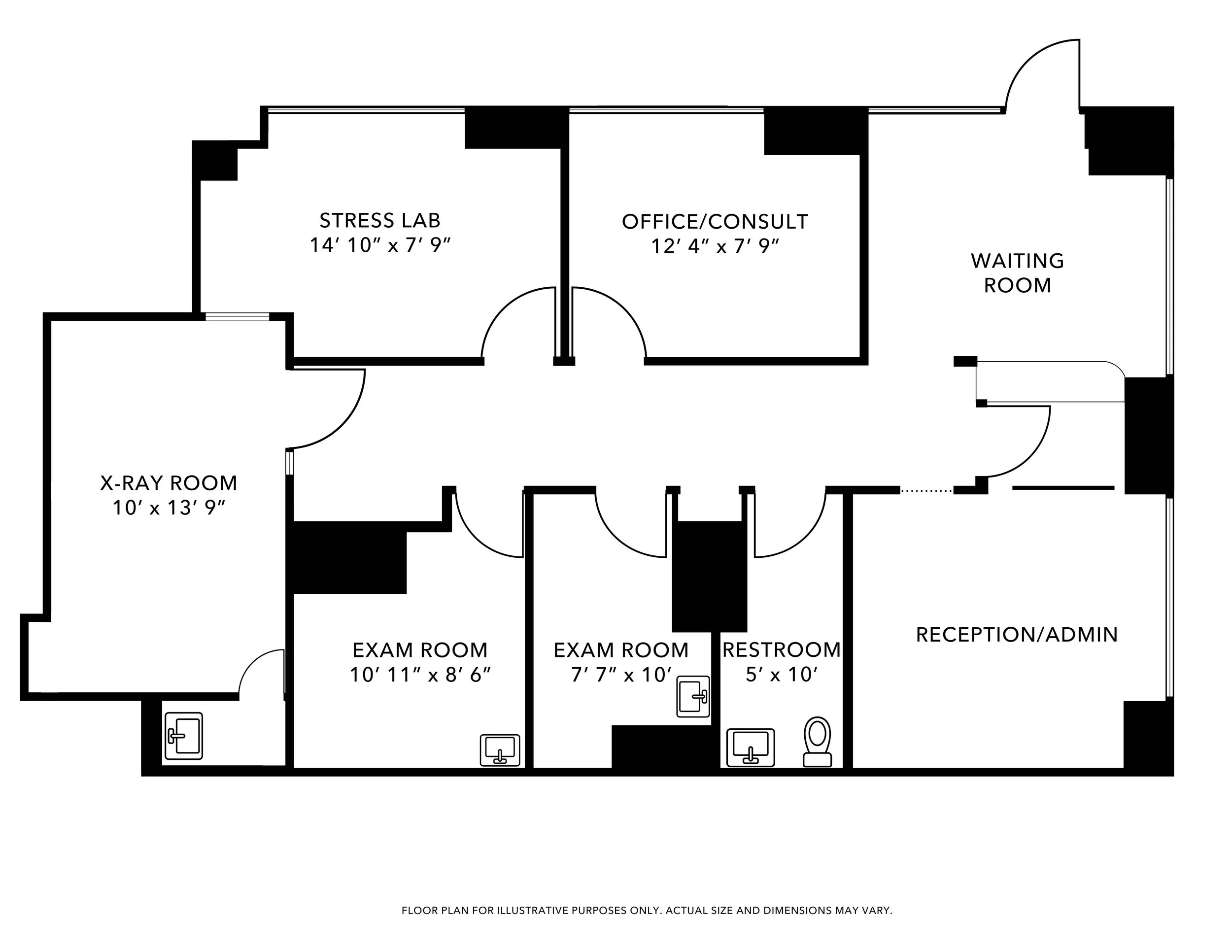
90 East End Ave, COM-A
Available for sale, 90 East End Avenue, Suite A is a ground-floor medical office space located in Yorkville on the Upper East Side on the corner of East 84th Street and East End Avenue.
The layout of approximately 1,142 square feet includes a waiting room, a reception and admin area, a large office/consult, two exam rooms, a stress lab, and a restroom.
This suite features a private entrance on 84th Street, five windows – two facing East End Avenue. Currently configured as a cardiology and physical therapy practice, this space is adaptable to any medical specialty.
90 East End Avenue is easily accessible by public transportation via the 4, 5, 6, and N, Q, R train lines at 86th Street and UES bus routes. This suite is proximate to UES hospitals and medical centers.
Common Charges: $850/Month
RE Taxes: $35,825/Year